Paul Hollywood's Farmhouse Makeover: A Mega Kitchen for New TV Shows

Paul Hollywood aims to transform home cooking into a profitable venture by recording television cooking programs from a newly built kitchen extension in his ancient farmhouse.

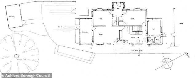
The judge from The Bake Off has submitted an application for listed building consent to tear down a deteriorating conservatory with plans to replace it with a larger open-plan kitchen-diner at their countryside getaway.

The planning documents refer to him as 'a prominent television host and renowned chef,' indicating that his suggested 21-foot by 16-foot kitchen would offer ample room for filming demonstrations of recipe preparations aimed at producing 'docuseries.'

Hollywood, aged 59, intends to substitute his current compact and 'cramped' kitchen with a new one because the present space is inadequate for filming purposes within his partially timber-framed home, which was constructed in the 17th century.

He contends that making television programs from his Grade Two listed property will serve as a 'public social good,' which should assist him in obtaining approval for the proposed one-story addition.

Hollywood and his second wife, Melissa, aged 41, who tied the knot in Cyprus during September 2023, have together filed an application to construct an additional space at their residence close to Ashford, Kent.

They have similarly sought permission to build both a log storage area and a walled kitchen garden featuring pleached fruit trees along with elevated planting areas situated among walkways for cultivating their own veggies and herbs.

They intend to transform their former kitchen into an office, convert the current dining area into a lounge, repurpose the present sitting space as a family room, and replace four Crittall-style windows with traditionally styled wooden ones instead.

Last year, Hollywood attempted two times to obtain approval for adding a flat-roofed extension to his residence, which spans eight acres in what’s known as the Garden of England. He purchased this property back in 2019 for £875,000.

However, he withdrew both suggestions following objections from Ashford Borough Council officials who expressed their disagreement, stating that the proposals were 'not in harmony with the historical layouts and character of the host structure.'

After reconsidering, he and his spouse drafted updated plans differing from the previous ones as they decided to connect the extension to the primary section of his home via a connected walkway instead.

This new addition will provide an additional 23 square meters of floor space over the current 1980s-era conservatory, which is deemed structurally unsafe, lacks historical significance, and requires replacement.

The plans indicate that the kitchen-diner, built using Flemish bond bricks and Kent peg roof tiles, will feature a central island along with three pairs of double doors leading out to the patio and garden, allowing plenty of natural light to fill the space.

The report from the couple's representative at Lander Planning asserts that the proposed addition will serve as a 'distinct unit' separate from the primary residence and will be 'appropriately scaled visually,' ensuring it does not 'compromise the integrity of the historical element.'

The planning document states: "The suggested expansion is required for impromptu filming sessions for the property owner, Paul Hollywood, who is a renowned television figure and celebrated chef."

'The existing kitchen is not large and is too narrow for filming purposes - the cameras cannot be set up adequately to obtain the required shots.

The suggested kitchen, conversely, will offer an appropriate area for such activities. This space will allow for the production of a distinctive documentary featuring Paul Hollywood preparing meals at his house.

This would offer a captivating and improved experience for spectators as the chef remains in his well-known surroundings.

To summarize, the suggested expansion has been shown to be essential to align with contemporary standards for a spacious four-bedroom home. Additionally, this extension will accommodate sporadic documentary filming for the applicant, who is both a television personality and renowned chef.

These elements represent significant aspects that ought to be assigned considerable importance when deciding on the application.

The report further states: "The advantages for the public include having a kitchen area appropriate for a house of this scale, which ensures the property remains attractive on the future market and maintains its feasibility."

'Utilizing this space for television cooking programs offers a distinctive advantage that could contribute positively to societal well-being.'

The document also notes that the updated 'open kitchen and dining area' will feature 'significantly more illumination compared to the present setup' and represents 'a natural progression for the existing structure.'

It states: "The current kitchen is inadequate, serving as a small galley with a limited pathway between the two parallel work surfaces."

The kitchen spans just 2.5 meters deep and offers minimal workspace and storage areas. Its dimensions and design fail to align with contemporary requirements.

The limitations imposed on the property’s listing make it impossible to create an adequate kitchen-dining area within the main house without compromising the historical integrity of the structure, as doing so would require tearing down interior walls.

Hollywood’s residence already includes stables, an orchard, a paddock, a shepherd’s cottage, and a chicken coop.

In December 2019, the television celebrity received approval for constructing an additional garage meant for housing his fleet of automobiles and motorcycles.

However, he was denied permission for a 40-foot by 26-foot steel-framed storage structure in October 2021 because it was considered detrimental to the aesthetics surrounding the listed property.

The planning agent from Hollywood mentions several nearby properties that have received approval for expansions.

Since the launch of The Great British Bake Off in 2010, this presenter has served as a judge. They also had a historical building conservation architect design a heritage statement for their home renovation project. The architect referred to the plan as a 'sympathetic addition' to their residence.

The Ashford Council is anticipated to reach a decision regarding the proposals next month and has not yet encountered any opposition from nearby residents.

However, the local parish council requested that Hollywood’s proposals be reviewed by the district council's team responsible for listed buildings.

The organization added in a statement: "We aim to comprehend the commercial application and the societal advantage for the parish."

The applicant mentions filming inside the premises; however, the extent of the filming is unspecified. We raise no concerns regarding the provided blueprints.

Read more
Read Also
Share
Like this article? Invite your friends to read :D
Post a Comment